Scroll to top

Gulfview 1442G12

Modern, Furnished, and Quality Built

This well-designed home offers modern living in a quality built space. Ideal for first-time buyers, students, or investors, this home features a functional layout, premium finishes, and many options for amenities.

Size

399 ft²

Bedrooms

1

Bathrooms

2
Rooms

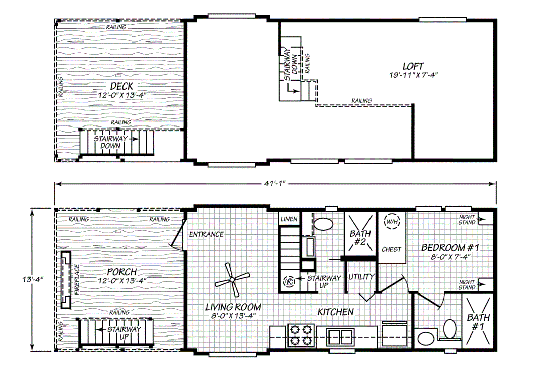
Floorplan

Bedroom
Bathroom #1
Kitchen
Utility Room
Bathroom #2
Living Room
Loft Upstairs
Deck
Porch
Customization

Choices include, but aren't limited to

  • Appliances
  • Countertops
  • Faucets
  • Flooring
  • Hardware
  • Wall colors and finishes
  • Lighting fixtures
  • Exterior styles and colors
  • Energy-efficient upgrades
  • Smart home technology

Ready to make your next move?

Contact Us

Get a Free Consultation

Your message has been sent successfully. Refresh this page if you want to send more messages.
Sorry, there was an error sending your form. Please refresh this page and try again.