Scroll to top

BW 1438D11

Modern, Furnished, and Quality Built

This well-designed home offers modern living in a quality built space. Ideal for first-time buyers, students, or investors, this home features a functional layout, premium finishes, and many options for amenities.

Size

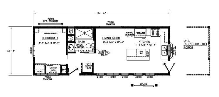
499 ft²

Bedrooms

1

Bathrooms

1
Rooms

Floorplan

Bedroom
Bathroom
Closet
Living Room
Kitchen
Optional Porch
Customization

Choices include, but aren't limited to

  • Appliances
  • Countertops
  • Faucets
  • Flooring
  • Hardware
  • Wall colors and finishes
  • Lighting fixtures
  • Exterior styles and colors
  • Energy-efficient upgrades
  • Smart home technology

Ready to make your next move?

Contact Us

Get a Free Consultation

Your message has been sent successfully. Refresh this page if you want to send more messages.
Sorry, there was an error sending your form. Please refresh this page and try again.